2025

Gespeichert von sia2 am Mo., 25.08.2025 - 14:31
Hauptbild_Masterarbeiten
Schule
EPFL
Jahr

Projekt von

Projekt von

Lea Marzinzik

Begleitung

Begleitung

Dieter Dietz, Pier Vittorio Aureli

Breaking Boundaries. Scénarios for collective care in Single-Family Homes
Text Masterpreis

Single-family homes are among the most common domestic architectures in Germany. As a basis for this project, the theoretical statement The Boundaries of Labor which examines domestic space in the crisis of (elderly) care, identifies single-family homes as the place where the current crisis becomes most evident. They conceal the work of (mostly female) caregivers and isolate those that depend on care. Drawing on research and conversations with caregivers, the project proposes scenarios that examine potentials for transformation in a single-family home neighborhood in Borken, Germany, over the next 30 years. Differing in scale, these interventions mean to facilitate social connectivity, mutual aid, civility and adaptability for changing life circumstances of the residents. The aim is to create an architecture which considers the (affective) relations that residents form with their surroundings—by fostering social and cultural acceptance as well as an increased visibility of aging.

Text/Bild-Image
Bild/Text-Image
Bildbeschreibung
Bilder zur Verfügung gestellt / Images mises à disposition avec le projet / Foto courtesy
Text/Bild-Image

Weitere Projekte

HSLU
2025
Projekt von:

Jacqueline Gonzalez Solorzano

Begleitung:

Oliver Dufner

HEIA-FR
2025
Projekt von:

Maxime Deregis

Begleitung:

Sonia Curnier, Katell Mallédan, Fiona Per Puppo

HEPIA
2025
Projekt von:

Shanice Aka-Adjo

Begleitung:

Tedros Yosef, Damien Greder

Gespeichert von sia2 am Mo., 18.08.2025 - 11:46
Hauptbild_Masterarbeiten
Schule
EPFL
Jahr

Projekt von

Projekt von

Léa Guillotin

Begleitung

Begleitung

Jo Taillieu, Eric Lapierre

Re-fabriquer Sévelin : l’image de l’industrie au centre-ville
Text Masterpreis

Wie sieht die Zukunft der Fabrik und ihr Image im städtischen Umfeld aus? Im Stadtteil Sévelin in Lausanne, der heute weitgehend vom Dienstleistungssektor geprägt ist, fügt sich das Projekt in die letzte Gebäudegruppe aus den 1930er Jahren ein, die an das Recyclingunternehmen Goutte erinnert. Das Programm umfasst hauptsächlich ein Zentrum für die Wiederverwendung von Bauteilen aus dem Rückbau von Gebäuden in Lausanne, was seine Lage im Stadtzentrum rechtfertigt. Hinzu kommen Wohn- und Arbeitsräume für Handwerker, die Teil einer neuen Form der urbanen, lokalen und zirkulären Industrie sind. Die architektonische Maßnahme besteht in der Installation einer Überdachung, die das bestehende Gebäude schützt. Ihre modulare Struktur erstreckt sich punktuell um die Hallen herum, was einen schrittweisen Bau ermöglicht. Dieses Gitter, das wie ein großes Regal wirkt, gewährleistet den reibungslosen Ablauf des Programms und steht gleichzeitig im Dialog mit dem umgebenden Kulturerbe. Könnten Wiederverwendung und Industrie so das Stadtzentrum wiederbeleben?

Text/Bild-Image
Bild/Text-Image
Bildbeschreibung
Bilder zur Verfügung gestellt / Images mises à disposition avec le projet / Foto courtesy
Text/Bild-Image

Weitere Projekte

HEIA-FR
2023
Projekt von:

Koen Wintermans

Begleitung:

Stephanie Bender

FHNW
2025
Projekt von:

Maurin Nissen

Begleitung:

Dominique Salathé, Christoph Wieser

ETHZ
Anerkennung
2023
Projekt von:

Marine Gigandet, Janosch Kirchherr, Johannes Pfeifle

Begleitung:

An Fonteyne, Philip Ursprung

Gespeichert von sia2 am Mo., 18.08.2025 - 11:40
Hauptbild_Masterarbeiten
Schule
EPFL
Jahr

Projekt von

Projekt von

Isabel-Marie Grohe & Hanna Lindenberg-Kappmeyer

Begleitung

Begleitung

Jo Taillieu, Charlotte Malterre-Barthes

Pass This On. Protocols and Fictions for Ruins of Coal Extraction in Germany
Text Masterpreis

In Germany, the energy transition is ending decades of coal extraction. This leaves our generation with obsolete infrastructures, devastated land, and unsolved responsibilities. Pass This On investigates how to communally inherit ruins of extraction and reclaim potential resources. Through Protocols and Fictions, three case studies imagine possible futures for the Rheinisches Revier: Unbuilding the obsolete power plant Frimmersdorf proposes a process of careful dismantling and sorting, offering an alternative to demolition and capitalist redevelopment. The ruin becomes a shared resource, facilitating reuse practices. Reactivating the abandoned village of Bürgewald replaces plot boundaries with public grounds and land trusts. To counter speculation and sprawl, backyard extensions evolve into a systematic renovation tool to densify, expand, and connect the existing. Hijacking the last extraction site at Manheim recodes extraction machinery and ground water pumps to prepare for wetland ecologies. This post-natural landscape follows non-human timescales detached from speculative lake futures.

Text/Bild-Image
Bild/Text-Image
Bildbeschreibung
Bilder zur Verfügung gestellt / Images mises à disposition avec le projet / Foto courtesy
Text/Bild-Image

Weitere Projekte

USI
2023
Projekt von:

Lorenzo Rizzuti

Begleitung:

Walter Angonese

USI
Anerkennung
2025
Projekt von:

Elena Lina-Sabrina Gisela Starke

Begleitung:

Quintus Miller

HEPIA
2025
Projekt von:

Juliette Megroz

Begleitung:

Nicolas Bassand, Lionel Spicher

Gespeichert von sia2 am Mo., 18.08.2025 - 11:38
Hauptbild_Masterarbeiten
Schule
EPFL
Jahr

Projekt von

Projekt von

Felix Balling

Begleitung

Begleitung

Charlotte Malterre-Barthes, Jo Tailleu

In Defense of the Wrinkled, the Chapped and the Rough
Text Masterpreis

Zurich’s urban densification strategy dominated by systemic demolition and replacement, contributes to an accelerating housing crisis and environmental harm. Building on the Theoretical Statement Erased by Design, which examined the underlying entangled forces of policy, rhetorical obsolescence and others in the imminent demolition of homes along Baslerstrasse, this project calls for a necessary radical shift: halting demolition while revaluing and prolonging the existing. The project unfolds across three levels. First, a catalog archives the settlement’s qualities and material and immaterial values, challenging narratives of obsolescence and devaluation. Second, through a legislative imagination, the project reimagines local planning tools to disrupt the speculative logic of demolition-led densification and promote a more equitable transformation of the city by discouraging developers from demolishing. Third, and based on this altered premise, it proposes spatial intervention strategies to keep and prolong the homes – and its inhabitants, through less extractive, low-carbon approaches.

Text/Bild-Image
Bild/Text-Image
Bildbeschreibung
Bilder zur Verfügung gestellt / Images mises à disposition avec le projet / Foto courtesy
Text/Bild-Image

Weitere Projekte

EPFL
2025
Projekt von:

Lea Marzinzik

Begleitung:

Dieter Dietz, Pier Vittorio Aureli

HEIA-FR
2024
Projekt von:

Coline Bonnafous

Begleitung:

Isabel Concheiro, Yves Schihin

EPFL
2025
Projekt von:

Felix Balling

Begleitung:

Charlotte Malterre-Barthes, Jo Tailleu

Gespeichert von sia2 am Mo., 18.08.2025 - 11:34
Hauptbild_Masterarbeiten
Schule
EPFL
Jahr

Projekt von

Projekt von

Marie Bourdon & Juliette Lafrasse

Begleitung

Begleitung

Sophie Delhay, Luca Pattaroni

De 5 à 6. Transformation de hangars commerciaux en maison collective
Text Masterpreis

The diploma project involves the bold transformation of commercial warehouses into housing on the outskirts of Annecy, a town facing strong demographic growth. This ambitious project imagines a new way of living, both mixed and collective, by exploiting the gaps between the existing structures to insert shared, convivial spaces. It is built around “houses” capable of accommodating a diversity of lifestyles, while fostering social ties thanks to generous, well-designed communal spaces. In this way, the interstices become places for sharing, meeting and living together. The presentation of the project, as well as the quality of the drawings and models, testifies to great mastery. This is a refreshing proposal for housing that takes full advantage of the potential of commercial wasteland. The precise and rigorous approach is based on a clear urban strategy, ranging from large-scale to intimate domestic use.

Text/Bild-Image
Bild/Text-Image
Bildbeschreibung
Bilder zur Verfügung gestellt / Images mises à disposition avec le projet / Foto courtesy
Text/Bild-Image

Weitere Projekte

HSLU
2025
Projekt von:

Jacqueline Gonzalez Solorzano

Begleitung:

Oliver Dufner

FHNW
2024
Projekt von:

Julie Brunner

Begleitung:

Dominique Salathé, Andreas Nütten

FHNW
2023
Projekt von:

Lorena Sabattini

Begleitung:

Dominique Salathé

Gespeichert von sia2 am Mo., 18.08.2025 - 11:30
Hauptbild_Masterarbeiten
Schule
ZHAW
Jahr

Projekt von

Projekt von

Bianca-Diana Raspop

Begleitung

Begleitung

Ingrid Burgdorf, Andreas Sonderegger, Giulio Bettini

Zirkuläres Bauen
Text Masterpreis

Der Gebäudesektor ist ein intensiver Verbraucher von Ressourcen und erzeugt weltweit 40% der Emissionen, 70% davon während der Herstellung hochwertiger und langlebiger Materialien. Das macht den Gebäudebestand zum wertvollsten Materiallager des Landes. Urban Mining nutzt diesen Ansatz, indem es Ressourcen im Bestand erfasst und wieder nutzbar macht. In der gegenwärtigen Baupraxis werden jährlich zwischen 3.000 und 4.000 Abbruchbewilligungen erteilt, wobei ein signifikanter Anteil dieser Abbrüche ein beträchtliches Potenzial für die Gewinnung von Bauteilen und die Wiederverwendung aufweist. Es galt, ein Projekt mit möglichst hohem Anteil an wiederverwendeten Bauteilen in der Tragstruktur zu entwerfen. Der Entwurf berücksichtigt das Prinzip des «Design for Disassembly». Für die Treibhausgasbilanz bei der Erstellung des Tragwerks wird gegenüber einem konventionellen Neubauwert eine Einsparung von gut 75% des CO2 ermittelt. Das Tragwerk besteht aus einem Skelettbau, der aus wiederverwendeten Stahlbetonelementen errichtet wird. In diesem Neubau werden ca. 80% der tragenden Elemente als Bauteile aus rückgebauten Gebäuden wiederverwendet. 
 

Text/Bild-Image
Bild/Text-Image
Bildbeschreibung
Bilder zur Verfügung gestellt / Images mises à disposition avec le projet / Foto courtesy
Text/Bild-Image

Weitere Projekte

ZHAW
2024
Projekt von:

Michele Brühlmann

Begleitung:

Ingrid Burgdorf, Ron Edelaar, Andreas Sonderegger

EPFL
2024
Projekt von:

Antoine Ricard-Gauthier

Begleitung:

Dieter Dietz, Pier Vittorio Aureli

ETHZ
2025
Projekt von:

Frano Karlovic

Begleitung:

François Charbonnet, Patrick Heiz, Jacqueline Pauli

Gespeichert von sia2 am Mo., 18.08.2025 - 11:27
Hauptbild_Masterarbeiten
Schule
ZHAW
Jahr

Projekt von

Projekt von

Matthias Büchi

Begleitung

Begleitung

Ingrid Burgdorf, Giulio Bettini

Nullkilometerhaus
Text Masterpreis

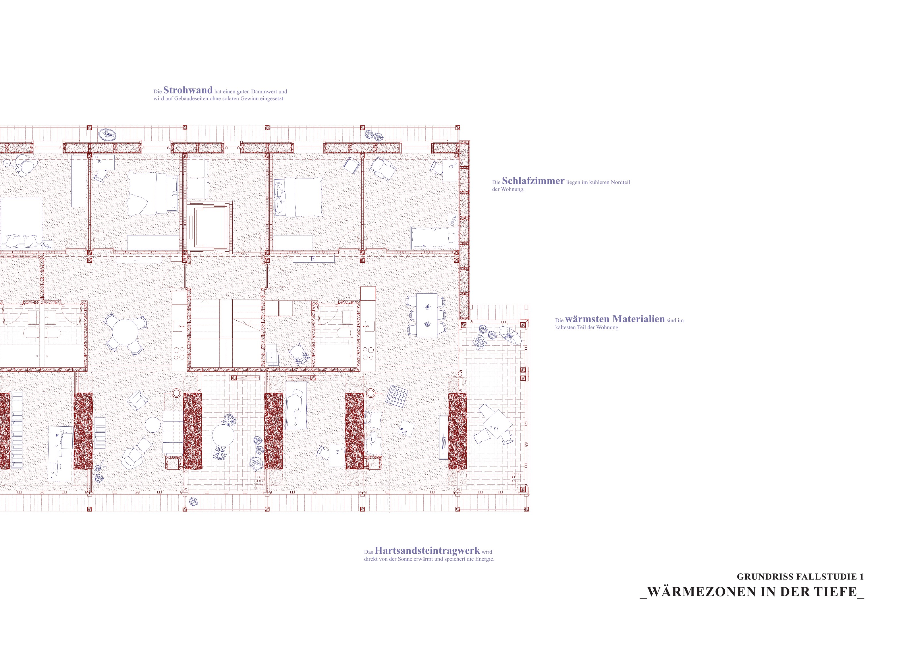
Die Masterthesis befasst sich mit der weiterführenden Fragestellung, für Wohngebäude mit hoher Speichermasse die Erstellungsenergie auszuloten. Es wird nach einer Bauweise gesucht, welche einen moderaten CO2-Verbrauch aufweist und so die kostbare Energieeinsparungen im Betrieb nicht durch einen erhöhten Bedarf an grauer Energie wieder zunichte macht. Hierfür sollen entsprechend dem Motto des "Nullkilometerhaus" konsequent Materialien bevorzugt werden, welche bei Rohstoffgewinnung, Verarbeitung und Transport möglichst wenig Energie verursachen. In einem Entwurf für eine Wohnüberbauung in Winterthur Seen wird das Thema anhand drei exemplarischer Fallstudien ausgelotet und anschaulich dargelegt. Mit einer sorgfältigen Moderation der Verarbeitungs- und Transportenergie werden dem Entwurf konsequent lokal verfügbare Materialien und Technologien zugrundgelegt. Aus den drei Fallstudien besonders hervorzuheben ist das Wohnen mit massiven Sandsteinpfeilern, welche Energie speichern und der Wohnung zugleich eine reizvolle architektonische Prägung verleihen. Zusammen mit den tiefen Grundrissen, welche die Wintersonne bis weit in die Wohnungen leiten.

Text/Bild-Image
Bild/Text-Image
Bildbeschreibung
Bilder zur Verfügung gestellt / Images mises à disposition avec le projet / Foto courtesy
Text/Bild-Image

Weitere Projekte

HEIA-FR
Anerkennung
2024
Projekt von:

Léo Laurence

Begleitung:

Götz Menzel, Dafni Retzepi

HSLU
Anerkennung
2022
Projekt von:

Florian Gugger

Begleitung:

Johannes Käferstein (Projekt), Dr. Oliver Dufner (Buch)

USI
2024
Projekt von:

Adrian Wetherell

Begleitung:

Frédéric Bonnet

Gespeichert von sia2 am Mo., 18.08.2025 - 11:24
Hauptbild_Masterarbeiten
Schule
USI
Jahr

Projekt von

Projekt von

David-Natanael Robu

Begleitung

Begleitung

João Nunes, João Gomes da Silva

Walking on Water
Text Masterpreis

The protection of the largest aquifer on the Iberian Peninsula, located on the Setubal Peninsula, is the subject of a landscape project that not only transforms the rural landscape of the area in question, but also the approach to managing agricultural activities in peri-urban areas. This landscape reorganisation project aims to reduce wind action within the area under consideration by modifying the upper layers of the soil and vegetation, thereby promoting a decrease in evapotranspiration from the fields. A bocage follows the drainage lines and interstices of the cadastral design, extending across the public space as a highly valuable ecological continuum. This green structure is capable of revolutionising the landscape surrounding the Moita area by intensifying biodiversity whilst promoting ecological continuity. This approach could also be the starting point for a metamorphosis of the city, taking on an urban version through the continuity of public transport and socio-environmental connections within cities.

Text/Bild-Image
Bild/Text-Image
Bildbeschreibung
Bilder zur Verfügung gestellt / Images mises à disposition avec le projet / Foto courtesy
Text/Bild-Image

Weitere Projekte

EPFL
2024
Projekt von:

Ada Massarente

Begleitung:

Paola Viganò, Pier Vittorio Aureli

ETHZ
Preis
2024
Projekt von:

Timo Bauer

Begleitung:

Alexandre Theriot, Silke Langenberg

ETHZ
2024
Projekt von:

Jérome Ammann

Begleitung:

Emanuel Christ & Christoph Gantenbein, Arno Schlüter

Gespeichert von sia2 am Mo., 18.08.2025 - 11:22
Hauptbild_Masterarbeiten
Schule
USI
Jahr
Rang

Projekt von

Projekt von

Maria Giulia Folonari

Begleitung

Begleitung

Frédéric Bonnet

Subsoil. The invisible becomes generative
Text Masterpreis

The project begins with the observation of what lies beneath the surface, focusing on what we do not immediately see, but that shapes a its possibilities: the invisible. By understanding its history, I saw how the site became what it is today, abandoned and polluted. I asked myself how to act on this invisible layer. I found an answer in compost and biochar: compost from organic waste, biochar from biomass. Together, they clean the soil, support microbial life and block heavy metals. Infrastructures are reconfigured to support the environment. People are already there, inhabiting a space that is still evolving. This is not a project that waits to be complete to be used; it is a space that invites us to live inside transformation, and to let the invisible become generative.

Text/Bild-Image
Bild/Text-Image
Bildbeschreibung
Bilder zur Verfügung gestellt / Images mises à disposition avec le projet / Foto courtesy
Text/Bild-Image

Weitere Projekte

ETHZ
Anerkennung
2025
Projekt von:

Zoe Struzina

Begleitung:

Momoyo Kaijima, BUK (Mettler & Studer)

ZHAW
2024
Projekt von:

Kevin Kummerow

Begleitung:

Ingrid Burgdorf, Valentin Loewensberg

HEPIA
2024
Projekt von:

Loredana Marescutti

Begleitung:

Tedros Yosef, Bruno Marchand

Gespeichert von sia2 am Mo., 18.08.2025 - 11:18
Hauptbild_Masterarbeiten
Schule
USI
Jahr

Projekt von

Projekt von

Joby Thoppil

Begleitung

Begleitung

Anne Holtrop

Scrap to Structure
Text Masterpreis

This thesis project explores how industrial byproducts can be repurposed architecturally without relying on energy-intensive recycling. This investigation raised the question: could the strongest form of aluminium exist – in its scrap state – without the need for melting? Discarded scrap was catalogued by size, shape, and thickness. This classification sparked the search for a low-energy method of recombination. Compression emerged as the key: by pressing scraps, blocks could be formed while saving up to 98% of the energy compared to melting, thus pausing the material cycle rather than continuing it. This process produced a lightweight, high-performance panel made entirely from scrap. The next step was to test how these blocks and panels could be combined into a cohesive structural system. The result was a design language uniting mass and lightness within a single constructive strategy. This project addresses a global challenge – the accumulation of industrial byproducts – and reframes it as an opportunity for architectural innovation. 

Text/Bild-Image
Bild/Text-Image
Bildbeschreibung
Bilder zur Verfügung gestellt / Images mises à disposition avec le projet / Foto courtesy
Text/Bild-Image

Weitere Projekte

ZHAW
Anerkennung
2023
Projekt von:

Rebecca Strässle

Begleitung:

Ingrid Burgdorf, Andreas Sonderegger, Marc Loeliger

ETHZ
2024
Projekt von:

Ines Rausis

Begleitung:

Momoyo Kaijima, Elli Mosayebi, BUK (Mettler & Studer)

HEPIA
2025
Projekt von:

Aya Agouzzal

Begleitung:

Alicia Escolar, Barbara Tirone, Bassel Farra